津市美杉総合文化センター
ページ番号1004704 更新日 2025年11月28日
- 概要
津市美杉総合文化センターは、津市西南部に位置し、産業の振興、社会教育および文化の向上、保健福祉の増進並びにレクリエーション活動の健全なる育成等を図るため、地域振興の総合的かつ拠点となる施設です。
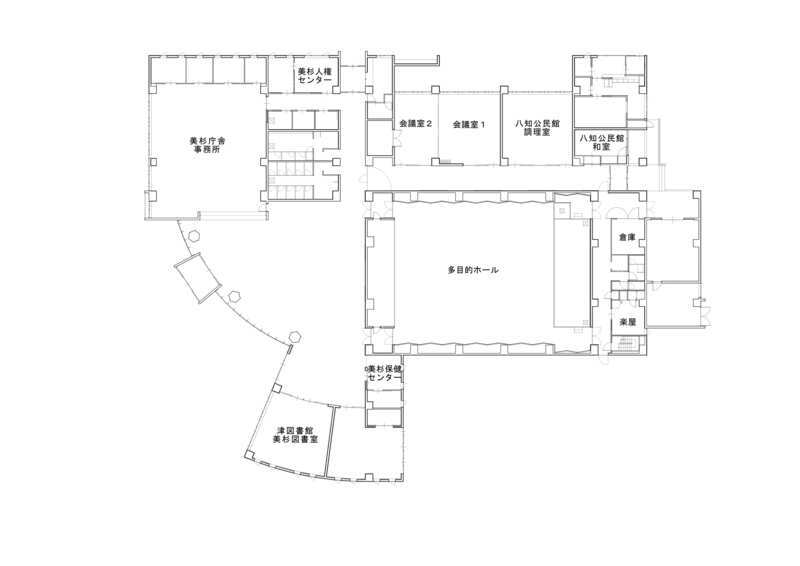
多目的ホール、会議施設、図書室、公民館、人権センター、保健センターを併設しています。- 所在地
- 三重県津市美杉町八知5580番地2
地図
多目的ホール

収容人数
300人
施設使用料
| 使用区分 | 使用料(2時間以内) |
超過使用料(1時間(1時間未満は、1時間とする)増すごとに) |
|---|---|---|
| 多目的ホール(入場料等を徴収しない場合または入場料等を徴収する場合で入場料等の額が1,000円以下のとき) | 5,230円 | 2,610円 |
| 多目的ホール(入場料等を徴収する場合で入場料等の額が1,000円を超えるとき) | 10,470円 | 5,230円 |
| 楽屋(入場料等を徴収しない場合または入場料等を徴収する場合で入場料等の額が1,000円以下のとき) | 310円 | 150円 |
| 楽屋(入場料等を徴収する場合で入場料等の額が1,000円を超えるとき) | 620円 | 310円 |
|
シャワー室 |
410円 | 200円 |
設備器具使用料
|
名称 |
区分 |
使用時間1時間当たりの使用料 |
|---|---|---|
| 舞台(電動式) | 1式(舞台設備器具を含む。) |
780円 |
| 客席(電動式) | 1台 |
780円 |
| 照明設備 | 1式 |
520円 |
| 音響設備 | 1式 |
520円 |
| 画像設備 | 1台 |
520円 |
| 電源コンセント | 1口(1キロワット) |
25円 |
会議施設
使用料
|
使用区分 |
使用料(2時間以内) |
超過使用料(1時間(1時間未満は、1時間とする)増すごとに) |
|---|---|---|
| 会議室1 |
1,460円 |
730円 |
| 会議室2 |
1,040円 |
520円 |
フロア図

屋外多目的広場
使用料
| 使用区分(屋外多目的広場) | 使用料(2時間以内) | 超過使用料(1時間(1時間未満は、1時間とする)増すごとに) |
|---|---|---|
| 入場料等を徴収しない場合 | 200円 | 100円 |
| 入場料等を徴収する場合 | 410円 | 200円 |
このページに関するお問い合わせ
美杉総合支所 地域振興課 総務担当
〒515-3421三重県津市美杉町八知5580-2
電話:059-272-8080 ファクス:059-272-1119
お問い合わせは専用フォームをご利用ください。
























