物件番号:B-306 津市高野尾町
ページ番号1012334 更新日 2026年3月9日
広い庭付き!徒歩圏内にスーパー有り!
物件詳細
- 物件番号
- B-306
- エリア
- 北部エリア(津地域の一部、河芸地域)
- 募集状態
- 募集中
- 価格・賃料
- 700万円
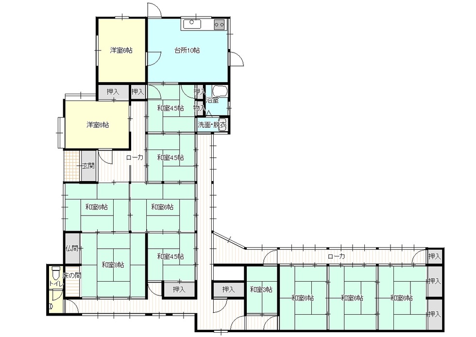
- 間取り
- 12DK
- 契約種別
- 売買 間接交渉
- 登録日
- 2026/03/09
- 建物種別
- 一戸建て(専用住宅)
- 建物面積
- 325.09平方メートル
- 土地面積
- 623.24平方メートル
- 構造・建物階数
- 木・コンクリートブロック造瓦・陸屋根平屋建
- その他
- 畑有り。昭和43年、昭和56年増築。雨漏りあり。増築の一部が畑用土地にかかっており、農地転用の手続きについての確認及び登記変更の手続き必要。
360度画像
選択した画像上で360度パノラマ表示がご覧いただけます。
地図
地図はセキュリティの観点から物件周辺を表示しています。
このページに関するお問い合わせ
都市計画部 都市政策課 都市計画・景観担当
〒514-8611三重県津市西丸之内23番1号
電話:059-229-3181 ファクス:059-229-3336
お問い合わせは専用フォームをご利用ください。
※お問い合わせの際には物件番号をお知らせください。 物件番号:B-306






